Quadrilocale in vendita

Scandriglia, Via macinello
€ 119.000
4 locali 4 locali
105 Mq 105 Mq
2 bagni 2 bagni

Quadrilocale in vendita

Scandriglia, Via macinello

Descrizione annuncio

A poche centinaia di metri dal centro del paese di Scandriglia, dove sono presenti tutti i servizi, appartamento in buono stato, in struttura composta da soli 2 immobili.
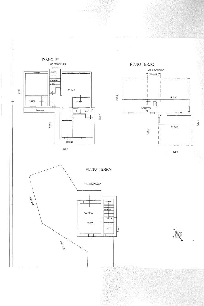
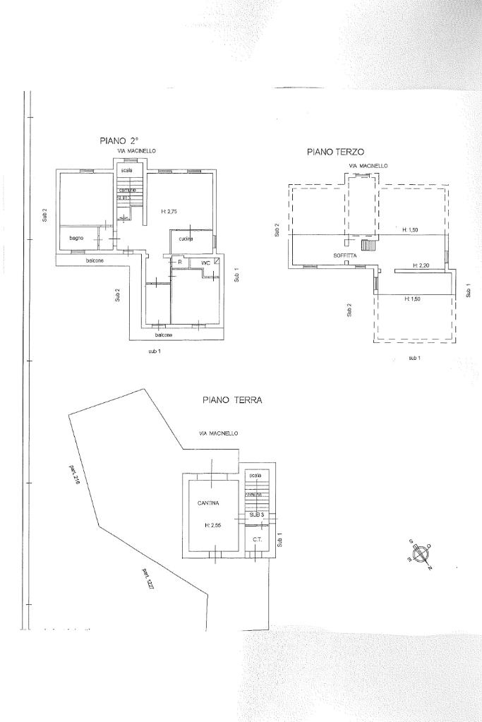
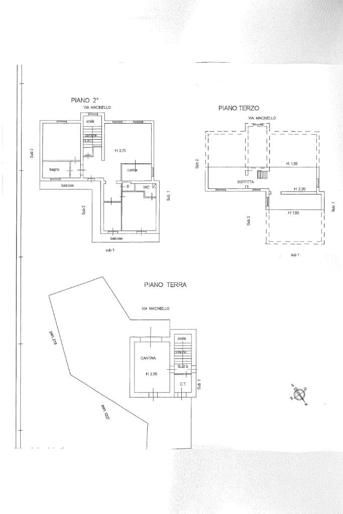
Sviluppato su unico livello, al 2° piano, dispone di: ingresso, salone con camino termico che alimenta anche i termosifoni, cucinotto a vista, 2 camere da letto matrimoniali, cameretta, 2 bagni uno con doccia ed uno con vasca, disimpegno, ripostiglio ed ampio balcone panoramico. Completano la proprietà una mansarda di 80 mq, da rifinire internamente, ubicata al 3° piano ed un piano terra con cantina di 4 mq, box auto di 25 mq e corte esterna privata di 50 mq.
Perfettamente abitabile da subito, l’appartamento è rifinito con pavimenti in monocottura, infissi in PVC finto legno doppio vetro con persiane in alluminio, porte e portone in legno.
Sono presenti e funzionanti tutti gli impianti con allacci alle utenze pubbliche.
L’appartamento si trova a circa 400 metri dal centro di Scandriglia ed è raggiungibile comodamente con la macchina con strada completamente asfaltata.
La via Salaria ed Osteria Nuova distano circa 10 minuti di strada provinciale.

Mostra tutto

Nelle vicinanze

Trasporto pubblico Trasporto pubblico
Trasporto pubblico
460 m
Ospedali Ospedali
Farmacia
630 m
Supermercati Supermercati
Supermercati
730 m
Negozi Negozi
Panetteria Antico Forno
330 m
Forno
630 m
Alimentari
630 m
Ristoranti Ristoranti
La fonte
190 m
Bar Pizzeria La Torre
3,0 Km
Mostra tutto

Caratteristiche

Rif.:
61137225
Piano:
2 di 4 (Piano alto)
Box:
1
Posti auto:
1
Balconi:
1
Camere da letto:
3
Mostra tutto
Prezzo Prezzo
€ 119.000
Rata mutuo Rata mutuo
€ 553 / mese
Spese annue Spese annue
€ 1
Proponi il tuo prezzoProponi il tuo prezzo

Classe Energetica

G
G
G
G
G
G
G
G
G
EP globale non rinnovabile:
321.28 kW h/m² anno
EP globale rinnovabile:
60.32 kW h/m² anno
EP invernale del fabbricato:
EP estiva del fabbricato:
Anno di costruzione:
1975
Riscaldamento:
Autonomo
Tipo impianto:
Ad aria
Tipo alimentazione:
Metano

Ti interessa visionare l'immobile?

Fissa un appuntamento  Fissa un appuntamento

Richiedi informazioni

Clicca su Leggi per aprire l'informativa
* Questi campi sono obbligatori

Calcola il tuo mutuo

Semplice e senza impegno
Anticipo

( % )
Mutuo

( % )

pochi semplici passi

inserisci i tuoi dati
Questionario completato
Grazie per aver richiesto un appuntamento senza impegno con un nostro Consulente del Credito e Assicurativo.

Hai inserito correttamente tutti i dati necessari e a breve riceverai una e-mail con un link da convalidare per inviare i tuoi dati.
Affiliato
Jars Salaria Immobiliare Srl
Via Salaria Nuova km 52800, 53 02037 Poggio Moiano (RI)

Il nostro staff


  • Michela Federici
    Coordinatrice

  • Mario Lugini
    Affiliato

  • Simone Bernardini
    Affiliato

  • Gianluca Fioroni
    Responsabile
Via Salaria Nuova km 52800, 53 02037 Poggio Moiano (RI)
Zona: P. Moiano - P. Nativo- Frasso S. - C. di Farfa - Toffia - Scandriglia - Lago Turano
Mostra su mappa
Orari: lunedì - venerdì 8:30 - 13:00/15:30 - 20:00; sabato 8:30 - 17:30
Affiliato
Jars Salaria Immobiliare Srl
Via Salaria Nuova km 52800, 53 02037 Poggio Moiano (RI)

2026 Tecnocasa Franchising S.p.A. - P. IVA 08365160152 - Via Monte Bianco 60/A 20089 Rozzano (MI). Ogni agenzia ha un proprio titolare ed è autonoma. Privacy policy | Policy utilizzo | Cookie policy