Trilocale in vendita

Nerola, Via Antica Quinzia - Acquaviva
€ 110.000
3 locali 3 locali
80 Mq 80 Mq
1 bagno 1 bagno

Trilocale in vendita

Nerola, Via Antica Quinzia - Acquaviva

Descrizione annuncio

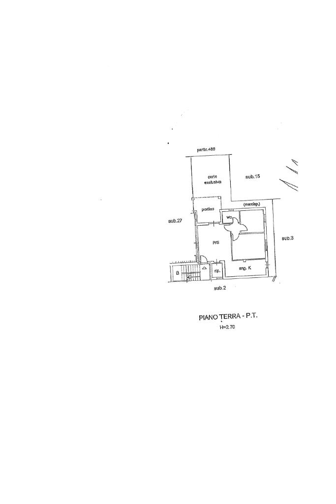
In prossimità del centro del paese di Acquaviva, frazione di Nerola, appartamento al piano terra con ingresso indipendente.

Sviluppato su unico livello, dispone di salone con veranda chiusa con finestre removibili, cucina, camera da letto matrimoniale, cameretta, ripostiglio, disimpegno, bagno con doccia ed ampio balcone.

La proprietà è completata da un giardino privato di 250 mq, ad uso esclusivo.

Costruito nel 2011, l’appartamento è rifinito con pavimenti in gres porcellanato, infissi in legno doppio vetro con persiane e zanzariere, porte in legno e portone blindato.

In ottimo stato, è perfettamente abitabile da subito con tutte le utenze allacciate e funzionanti.

L’appartamento, comodamente raggiungibile con la macchina con strada asfaltata, dista pochi minuti da Borgo Quinzio e 10 km dal centro del paese di Passo Corese e dalla stazione ferroviaria.

Mostra tutto

Nelle vicinanze

Scuole Scuole
Scuole
2,8 Km
Negozi Negozi
Alimentari
90 m
Le Molinare
190 m
Carrefour Express
260 m
Bar Bar
Pallino
2,5 Km
Bar
2,7 Km
Ristoranti Ristoranti
Il Giardino
260 m
Osteria del Castello
2,3 Km
Agriturismo Del Sole
2,4 Km
Pizzeria Daniela
2,9 Km
Mostra tutto

Caratteristiche

Rif.:
61157156
Piano:
1 di 3 (Piano terra)
Posti auto:
1
Balconi:
1
Camere da letto:
2
Arredamento:
Assente
Mostra tutto
Prezzo Prezzo
€ 110.000
Rata mutuo Rata mutuo
€ 519 / mese
Spese annue Spese annue
€ 1
Proponi il tuo prezzoProponi il tuo prezzo

Classe Energetica

G
G
G
G
G
G
G
G
G
EP globale non rinnovabile:
281.56 kW h/m² anno
EP globale rinnovabile:
1.00 kW h/m² anno
EP invernale del fabbricato:
EP estiva del fabbricato:
Anno di costruzione:
2011
Riscaldamento:
Autonomo
Tipo impianto:
Ad aria
Tipo alimentazione:
Metano

Ti interessa visionare l'immobile?

Fissa un appuntamento  Fissa un appuntamento

Richiedi informazioni

Clicca su Leggi per aprire l'informativa
* Questi campi sono obbligatori

Calcola il tuo mutuo

Semplice e senza impegno
Anticipo

( % )
Mutuo

( % )

pochi semplici passi

inserisci i tuoi dati
Questionario completato
Grazie per aver richiesto un appuntamento senza impegno con un nostro Consulente del Credito e Assicurativo.

Hai inserito correttamente tutti i dati necessari e a breve riceverai una e-mail con un link da convalidare per inviare i tuoi dati.
Affiliato
Jars Salaria Immobiliare Srl
Via Salaria Nuova km 52800, 53 02037 Poggio Moiano (RI)

Il nostro staff


  • Michela Federici
    Coordinatrice

  • Mario Lugini
    Affiliato

  • Simone Bernardini
    Affiliato
Via Salaria Nuova km 52800, 53 02037 Poggio Moiano (RI)
Zona: P. Moiano - P. Nativo- Frasso S. - C. di Farfa - Toffia - Scandriglia - Lago Turano
Mostra su mappa
Orari: lunedì - venerdì 8:30 - 13:00/15:30 - 20:00; sabato 8:30 - 17:30
Affiliato
Jars Salaria Immobiliare Srl
Via Salaria Nuova km 52800, 53 02037 Poggio Moiano (RI)

2025 Tecnocasa Franchising S.p.A. - P. IVA 08365160152 - Via Monte Bianco 60/A 20089 Rozzano (MI). Ogni agenzia ha un proprio titolare ed è autonoma. Privacy policy | Policy utilizzo | Cookie policy